via buccari 1
30171 venezia (Italia)
+39 041 419 03 37
info@gi-f.com

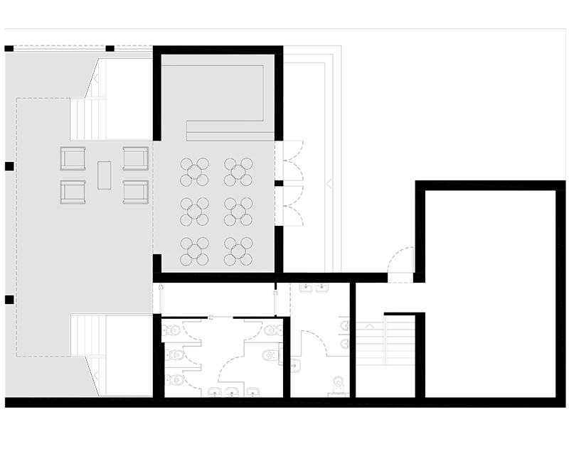
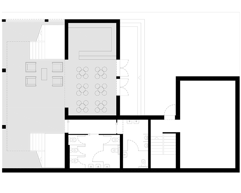
RISTRUTTURAZIONE DEGLI SPAZI DI ACCOGLIENZA DEL TEATRO LA FOUDRE
LA FOUDRE THEATER REFURBISHMENT


luogo/location: Petit Quevilly (Francia) mappa/map
cliente/client: Comune di Petit Quevilly; Ente Teatro La Foudre
consulenti/consultants: ECIB économistes (computi)
superficie/gross surface: 75m²
importo opere/cost: 66K € IVA escl.
stato/phase: realizzato
cronologia progetto/design timetable: 12.2010-02.2012
cronologia lavori/worksite timetable: 06.2012-10.2012


download PDF (it)
download PDF (en)
download PDF (fr)