via buccari 1
30171 venezia (Italia)
+39 041 419 03 37
info@gi-f.com

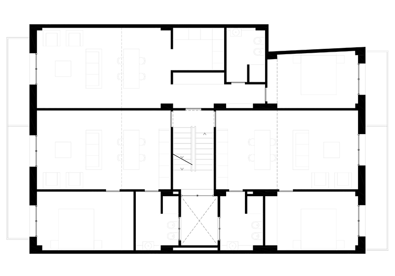
RISTRUTTURAZIONE INTERNA DI 3 APPARTAMENTI
3 APARTMENTS RENOVATION


luogo/location: Zafferana Etnea (Italia) mappa/map
cliente/client: privato
superficie/gross surface: 180m²
importo opere/cost: 150K € IVA escl.
stato/phase: progetto definitivo
cronologia/timetable: 09.2014-12.2014


download PDF (it)
download PDF (en)
download PDF (fr)