via buccari 1
30171 venezia (Italia)
+39 041 419 03 37
info@gi-f.com

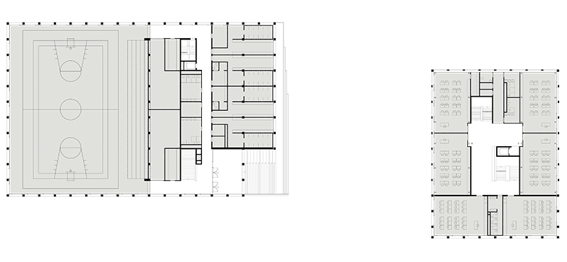
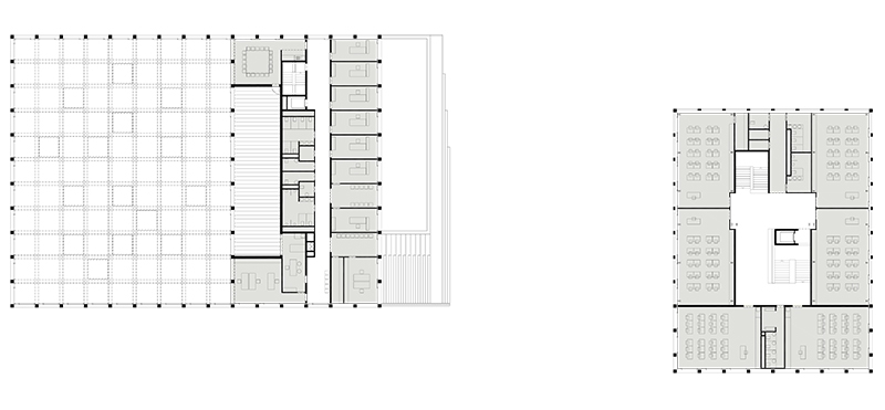
COMPLESSO SCOLASTICO BOIS-MURAT
BOIS-MURAT SCHOOL COMPLEX


luogo/location: Epalinges (Svizzera) mappa/map
cliente/client: Comune di Epalinges; BOIS-MURAT Campus
consulenti/consultants: Tajana & Partners (strutture e impianti)
superficie/gross surface: 5 800m²
importo opere/cost: 15,0M € IVA escl.
stato/phase: concorso internazionale di progettazione
cronologia/timetable: 09.2015-02.2016


download PDF (it)
download PDF (en)
download PDF (fr)