via buccari 1
30171 venezia (Italia)
+39 041 419 03 37
info@gi-f.com

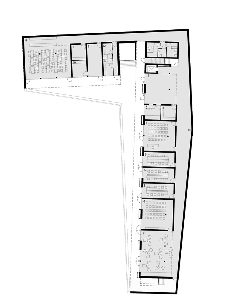
RESIDENZE E SERVIZI PER STUDENTI NEL CAMPUS COLLEGIO DI MILANO
STUDENT HOUSING AND FACILITIES IN THE COLLEGIO DI MILANO UNIVERSITY CAMPUS


luogo/location: Milano (Italia) mappa/map
cliente/client: Fondazione Collegio delle Università Milanesi
consulenti/consultants: Wood Cape (strutture in X-LAM); Studio Associato Breda Patrizi Zandonà (strutture in C.A.)
superficie/gross surface: 1100m²
importo opere/cost: 3,2M € IVA escl.
stato/phase: progetto di fattibilità tecnico-economica
cronologia/timetable: 04.2016-07.2016


download PDF (it)
download PDF (en)
download PDF (fr)