via buccari 1
30171 venezia (Italia)
+39 041 419 03 37
info@gi-f.com

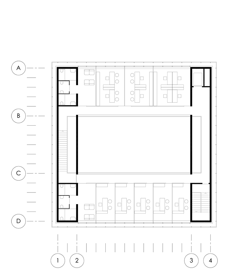
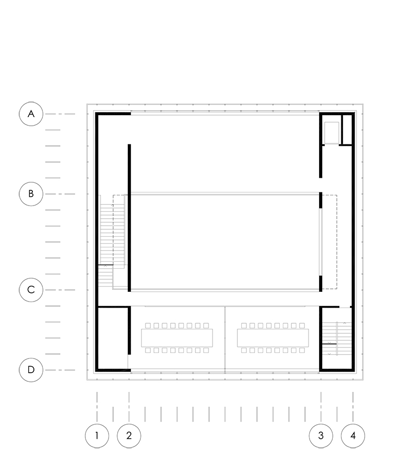
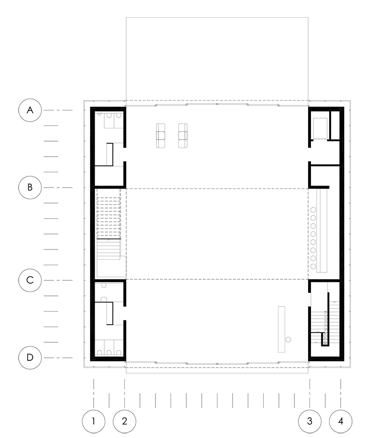
EDIFICIO POLIVALENTE STONE-CITY
STONE-CITY HEADQUARTER


luogo/location: Zandobbio (Italia) mappa/map
cliente/client: Granulati Zandobbio s.p.a.
consulenti/consultants: Studio Associato Breda Patrizi Zandonà (ingegneria); Studio Barensi (CasaClima); Luca Rostellato (visuals)
superficie/gross surface: 1200m²
importo opere/cost: 2,8M € IVA escl.
stato/phase: concorso internazionale di progettazione
cronologia/timetable: 04.2017-06.2017


download PDF (it)
download PDF (en)
download PDF (fr)