via buccari 1
30171 venezia (Italia)
+39 041 419 03 37
info@gi-f.com

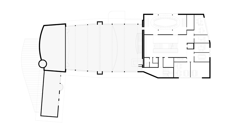
MUNICIPIO CON BIBLIOTECA E CENTRO MEDICO COMUNALE
TOWN HALL WITH MUNICIPAL LIBRARY AND MEDICAL CENTER


luogo/location: Santa Valburga (Italia) mappa/map
cliente/client: Comune di Ultimo-Santa Valburga (BZ)
consulenti/consultants: SINERGO Spa (ingegneria integrata)
superficie/gross surface: 1 680m²
importo opere/cost: 2,8M € IVA escl.
stato/phase: concorso internazionale di progettazione
cronologia/timetable: 07.2019-11.2019


download PDF (it)
download PDF (en)
download PDF (fr)