via buccari 1
30171 venezia (Italia)
+39 041 419 03 37
info@gi-f.com

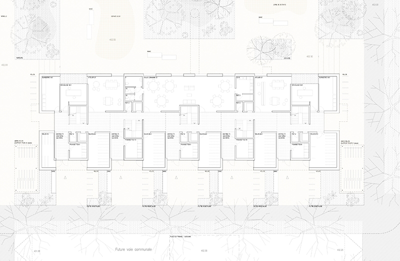
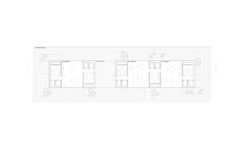
EDIFICIO RESIDENZIALE NEL QUARTIERE LE ROLLIET
LE ROLLIET HOUSING BLOCK


luogo/location: Plan-les-Ouates (Svizzera) mappa/map
cliente/client: Fondazione HBM Emma Kammacher
consulenti/consultants: UBU (visuals)
superficie/gross surface: 5 530m²
importo opere/cost: 16,0M € IVA escl.
stato/phase: concorso internazionale di progettazione
cronologia/timetable: 11.2020-04.2021


download PDF (it)
download PDF (en)
download PDF (fr)