via buccari 1
30171 venezia (Italia)
+39 041 419 03 37
info@gi-f.com

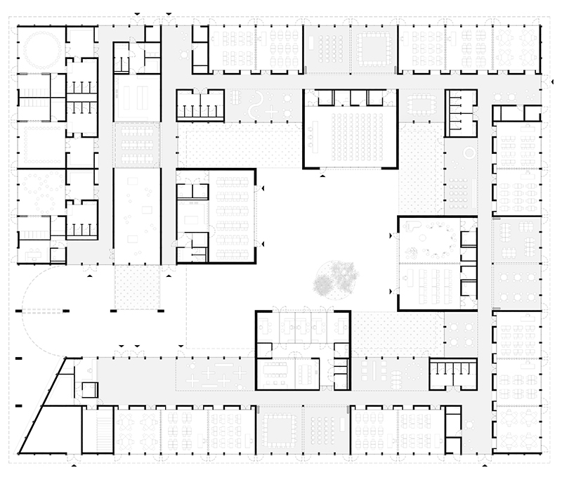
POLO SCOLASTICO METATO E SISTEMAZIONE AREE ESTERNE
METATO SCHOOL COMPLEX


luogo/location: San Giuliano Terme (Italia) mappa/map
cliente/client: Comune di San Giuliano Terme (PI)
consulenti/consultants: WOODCAPE (strutture in X-Lam); UBU (visuals)
superficie/gross surface: 3 600m²
importo opere/cost: 4,42M € IVA escl.
stato/phase: studio di fattibilità tecnico-economica
cronologia/timetable: 10.2021-02.2022
premi/awards: 5° PREMIO


download PDF (it)
download PDF (en)
download PDF (fr)