via buccari 1
30171 venezia (Italia)
+39 041 419 03 37
info@gi-f.com

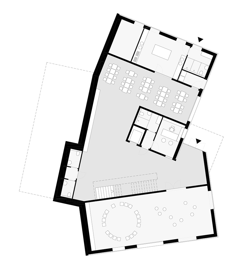
SCUOLA DELL'INFANZIA
KINDERGARTEN


luogo/location: Novafeltria (Italia) mappa/map
cliente/client: Comune di Novafeltria (RN)
consulenti/consultants: UBU (visuals)
superficie/gross surface: 650m²
importo opere/cost: 1,00M € IVA escl.
stato/phase: concorso di idee
cronologia/timetable: 08.2022-10.2022


download PDF (it)
download PDF (en)
download PDF (fr)