via buccari 1
30171 venezia (Italia)
+39 041 419 03 37
info@gi-f.com

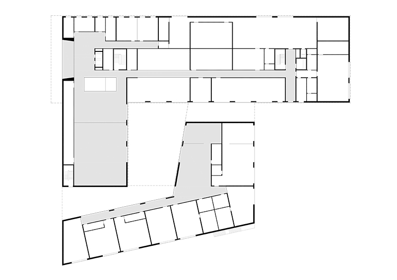
CASA DI RIPOSO CON CENTRO COMUNALE POLIVALENTE, NEGOZI E ALLOGGI PER ANZIANI
NURSING HOME CARE WITH COMMUNITY CENTER, RETAILS AND RESIDENTIAL UNITS


luogo/location: Coldrerio (Svizzera) mappa/map
cliente/client: Comune di Coldrerio; Fondazione SAN ROCCO; Fondazione CROCI-SOLCA'
superficie/gross surface: 6 350m² (casa di riposo); 1 050m² (centro comunale, negozi); 600m² (alloggi)
importo opere/cost: 18,0M € IVA escl.
stato/phase: concorso internazionale di progettazione
cronologia/timetable: 06.2015-09.2015


download PDF (it)
download PDF (en)
download PDF (fr)