via buccari 1
30171 venezia (Italia)
+39 041 419 03 37
info@gi-f.com

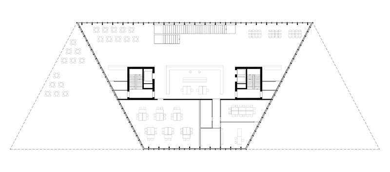
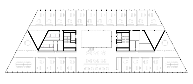
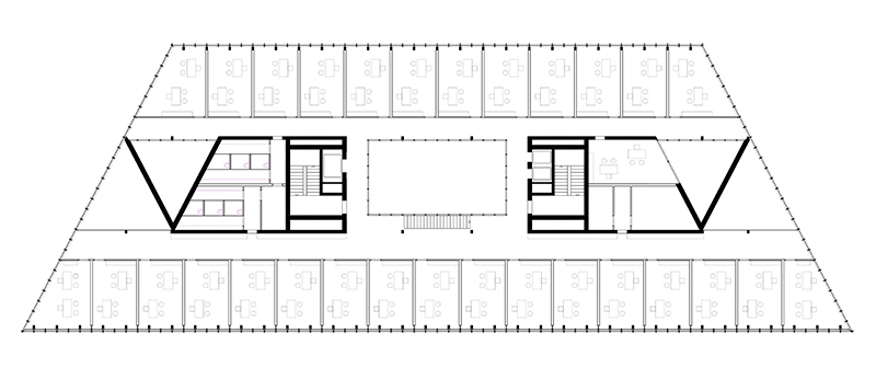
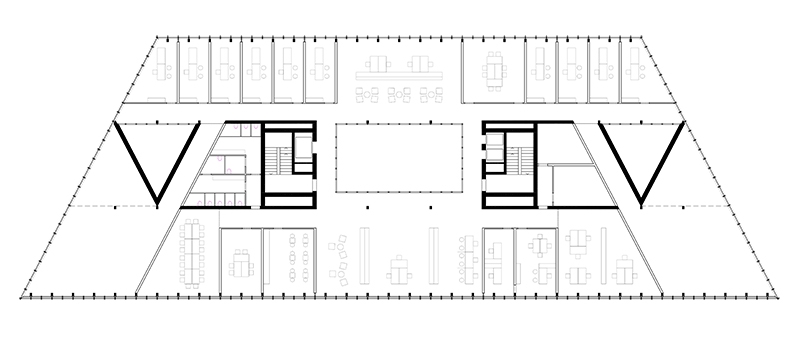
QUARTIER GENERALE DEL CLUSTER SPORT INTERNATIONAL ALL'INTERNO DEL CAMPUS UNIL
CLUSTER SPORT INTERNATIONAL HEADQUARTER


luogo/location: Losanna (Svizzera) mappa/map
cliente/client: Cantone del Vaud; UNIL-Campus Universitario di Losanna
consulenti/consultants: Pedrazzini-Guidotti (strutture); Erisel (impianti); Tecnoprogetti (energie rinnovabili)
superficie/gross surface: 7 000m²
importo opere/cost: 18,6M € IVA escl.
stato/phase: concorso internazionale di progettazione
cronologia/timetable: 05.2013-09.2013


download PDF (it)
download PDF (en)
download PDF (fr)