via buccari 1
30171 venezia (Italia)
+39 041 419 03 37
info@gi-f.com

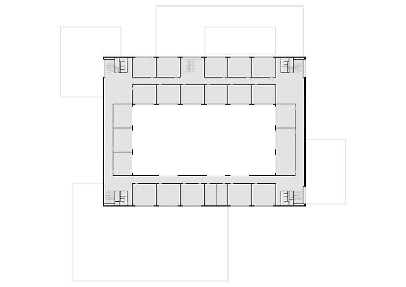
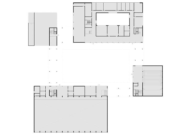
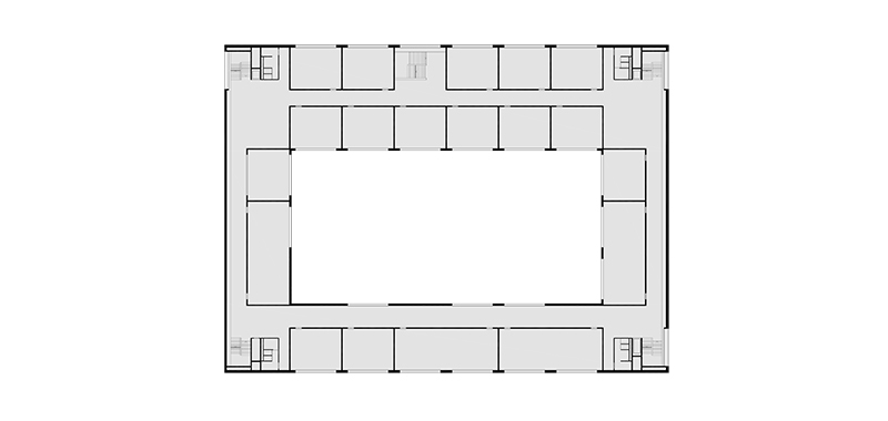
SCUOLA DI ORIENTAMENTO PROFESSIONALE CON PALESTRE, SALA CONFERENZE E MENSA
SPECIALIZING SECONDARY SCHOOL WITH GYMNASIUMS, ASSEMBLY HALL AND REFECTORY


luogo/location: Riaz (Svizzera) mappa/map
cliente/client: Associazione di Comuni per il Centro di Orientamento LA GRUYERE
superficie/gross surface: 15 000m²
importo opere/cost: 32,4M € IVA escl.
stato/phase: concorso internazionale di progettazione
cronologia/timetable: 11.2012-03.2013


download PDF (it)
download PDF (en)
download PDF (fr)