via buccari 1
30171 venezia (Italia)
+39 041 419 03 37
info@gi-f.com

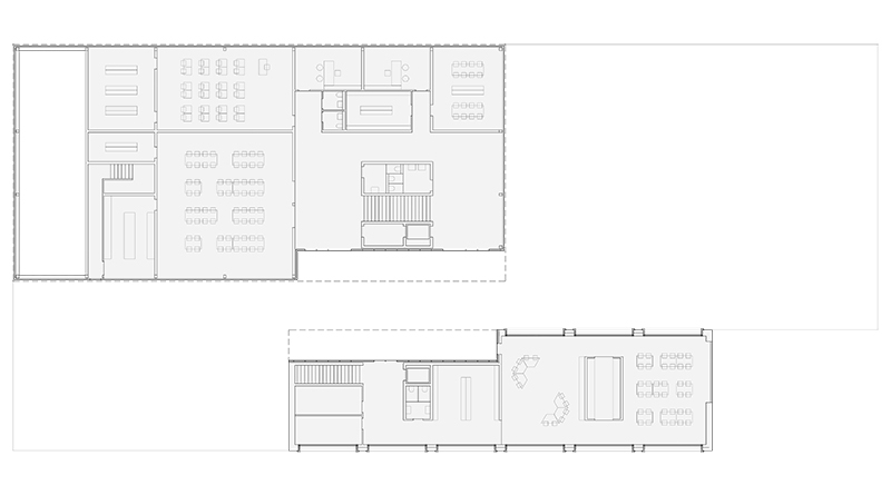
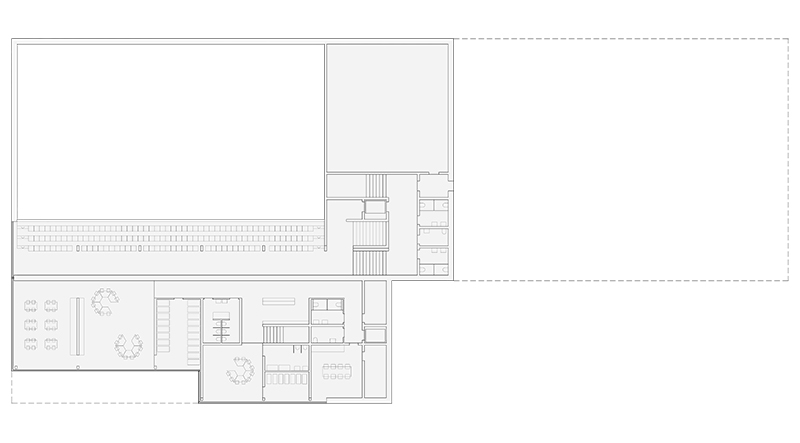
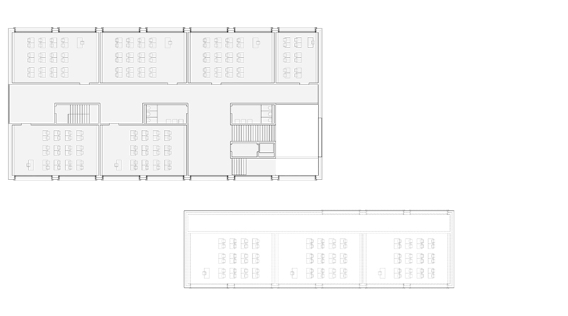
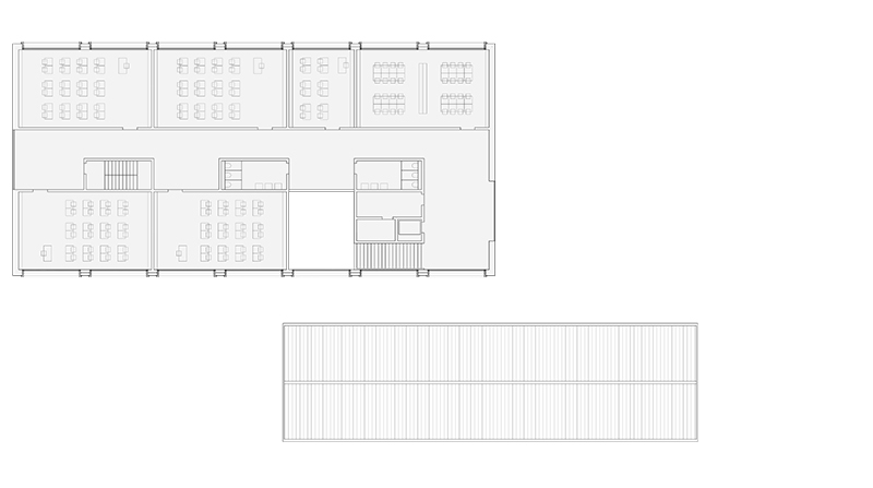
SCUOLA ELEMENTARE CON PALESTRA E DOPO-SCUOLA
PRIMARY SCHOOL WITH GYMNASIUM AND RECREATION FACILITIES


luogo/location: Versegères (Svizzera) mappa/map
cliente/client: Cantone del Valais; Comune di Bagnes
superficie/gross surface: 4 200m²
importo opere/cost: 10,0M € IVA escl.
stato/phase: concorso internazionale di progettazione
cronologia/timetable: 02.2013-06.2013


download PDF (it)
download PDF (en)
download PDF (fr)