via buccari 1
30171 venezia (Italia)
+39 041 419 03 37
info@gi-f.com

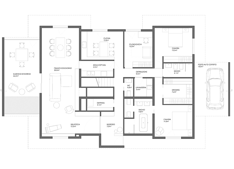
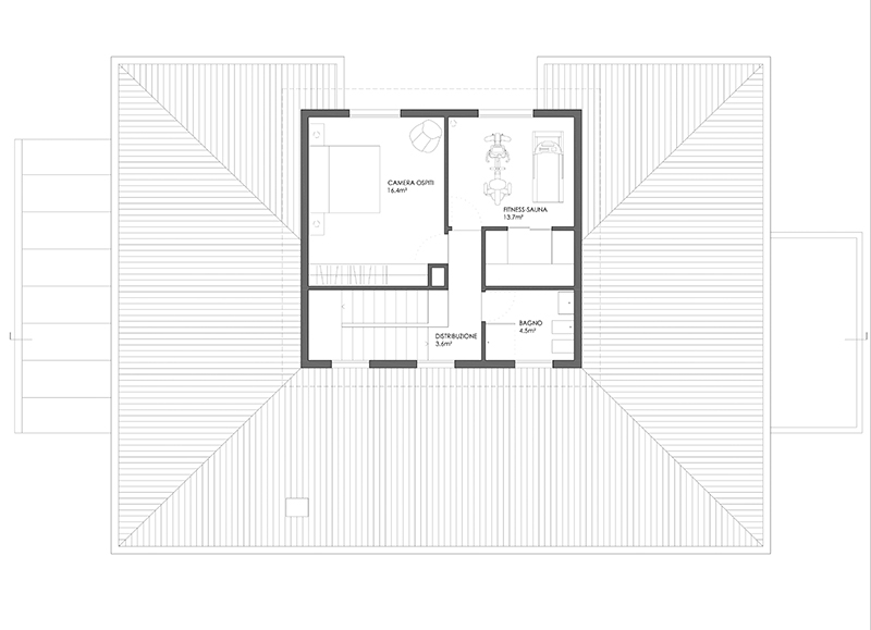
RISTRUTTURAZIONE DI UNA CASA UNIFAMILIARE
DETACHED HOUSE RENOVATION


luogo/location: Milano (Italia)
cliente/client: privato
superficie/gross surface: 230m²
importo opere/cost: 180K € IVA escl.
stato/phase: studio di fattibilità
cronologia/timetable: 03.2016-07.2016


download PDF (it)
download PDF (en)
download PDF (fr)