via buccari 1
30171 venezia (Italia)
+39 041 419 03 37
info@gi-f.com

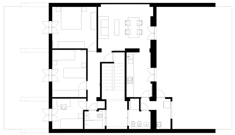
RISTRUTTURAZIONE DI UN APPARTAMENTO
APARTMENT RENOVATION


luogo/location: Zafferana Etnea (Italia) mappa/map
cliente/client: privato
consulenti/consultants: Di Mauro arredamenti
superficie/gross surface: 80m²
importo opere/cost: 47K € IVA escl.
stato/phase: completato
cronologia progetto/design timetable: 09.2017-01.2018
cronologia lavori/worksite timetable: 02.2018-06.2018


download PDF (it)
download PDF (en)
download PDF (fr)