via buccari 1
30171 venezia (Italia)
+39 041 419 03 37
info@gi-f.com

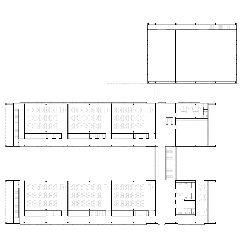
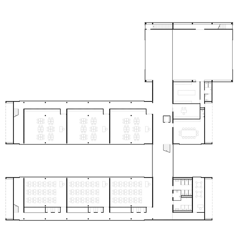
SCUOLA ELEMENTARE E SALA COMUNALE POLIVALENTE
PRIMARY SCHOOL AND COMMUNITY CENTER


luogo/location: Avry (Svizzera) mappa/map
cliente/client: Comune di Avry
consulenti/consultants: AIIC Ingénierie (strutture)
superficie/gross surface: 1 300m² (scuola elementare); 250m² (sala comunale)
importo opere/cost: 6,8M € IVA escl.
stato/phase: concorso internazionale
cronologia/timetable: 02.2008-07.2008


download PDF (it)
download PDF (en)
download PDF (fr)