via buccari 1
30171 venezia (Italia)
+39 041 419 03 37
info@gi-f.com

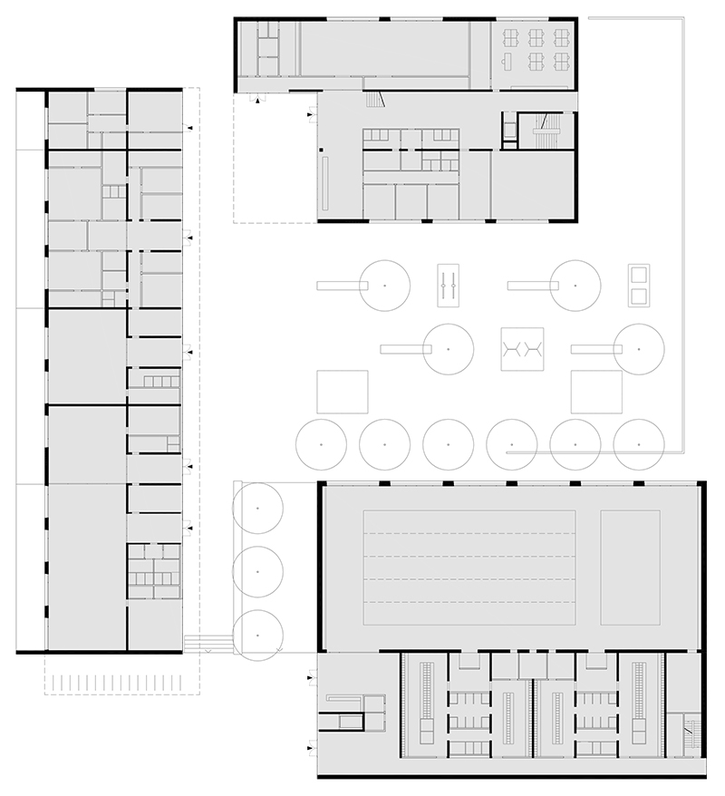
PLESSO SCOLASTICO CON ASILO NIDO E PISCINA COMUNALE
PRIMARY SCHOOL WITH NURSERY AND PUBLIC SWIMMING-POOL


luogo/location: Cossonay (Svizzera) mappa/map
cliente/client: Associazione intercomunale ASICOPE
consulenti/consultants: SWITCH Ingénierie (impianti ed energie rinnovabili)
superficie/gross surface: 3 900m²
importo opere/cost: 10,0M € IVA escl.
stato/phase: concorso internazionale
cronologia/timetable: 06.2012-09.2012


download PDF (it)
download PDF (en)
download PDF (fr)