via buccari 1
30171 venezia (Italia)
+39 041 419 03 37
info@gi-f.com

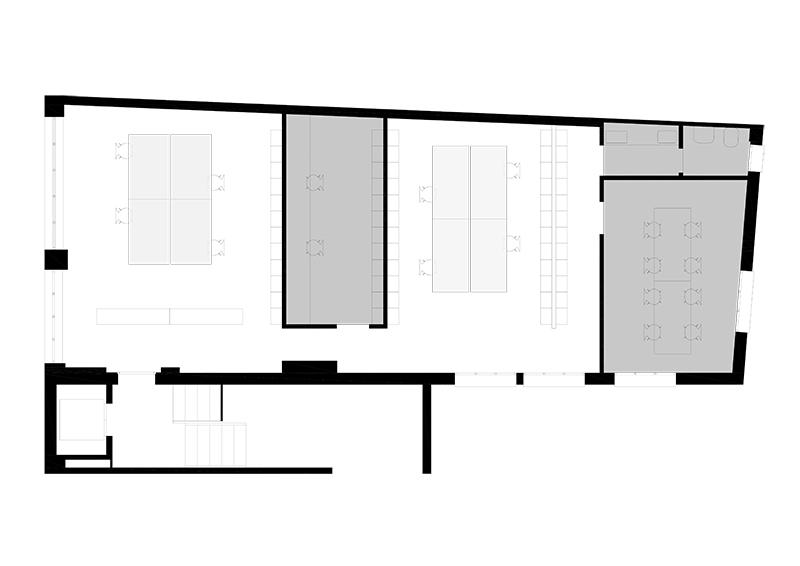
RISTRUTTURAZIONE INTERNA DI UN UFFICIO
OFFICE REFURBISHMENT


luogo/location: Venezia-Mestre (Italia) mappa/map
cliente/client: privato
superficie/gross surface: 105m²
importo opere/cost: 50K € IVA escl.
stato/phase: completato
cronologia progetto/design timetable: 10.2014-02.2015
cronologia lavori/worksite timetable: 03.2015-06.2015


download PDF (it)
download PDF (en)
download PDF (fr)