via buccari 1
30171 venezia (Italia)
+39 041 419 03 37
info@gi-f.com

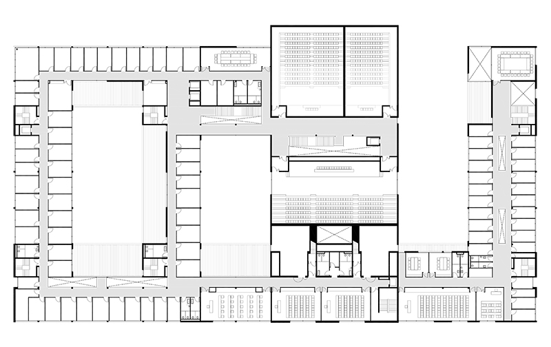
BLOCCO AULE, AUDITORIUM E BIBLIOTECA UNIVERSITARIA NEL CAMPUS TOHANNIC
DEPARTMENT BUILDING, AUDITORIUM AND UNIVERSITY LIBRARY IN THE TOHANNIC CAMPUS


luogo/location: Vannes (Francia) mappa/map
cliente/client: Comune di Vannes; UBS (Università della Bretagna del Sud)
consulenti/consultants: IOSIS Centre-Ouest (strutture, impianti ed energie rinnovabili)
superficie/gross surface: 10 600m²
importo opere/cost: 17,2M € IVA escl.
stato/phase: concorso a partecipazione ristretta
cronologia/timetable: 10.2009-02.2010


download PDF (it)
download PDF (en)
download PDF (fr)