via buccari 1
30171 venezia (Italia)
+39 041 419 03 37
info@gi-f.com

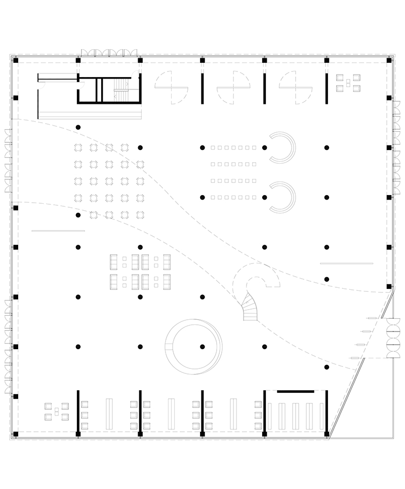
BIBLIOTECA ARABO-SUD AMERICANA
ARAB-SOUTH AMERICAN LIBRARY


luogo/location: Zeralda (Algeria) mappa/map
cliente/client: Ministero della Cultura Algerino
consulenti/consultants: STUDI Ingénierie (strutture e impianti); IOSIS (project management)
superficie/gross surface: 67 300m²
importo opere/cost: 109,0M € IVA escl.
stato/phase: concorso a partecipazione ristretta
cronologia/timetable: 03.2008-06.2008
premi/awards: PROGETTO MENZIONATO


download PDF (it)
download PDF (en)
download PDF (fr)