via buccari 1
30171 venezia (Italia)
+39 041 419 03 37
info@gi-f.com

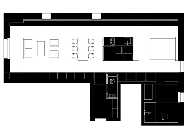
RISTRUTTURAZIONE DI UN APPARTAMENTO
APARTMENT RENOVATION


luogo/location: Parigi-7° arrondissement (Francia) mappa/map
cliente/client: privato
superficie/gross surface: 65m²
importo opere/cost: 100K € IVA escl.
stato/phase: realizzato
cronologia progetto/design timetable: 09.2009-03.2010
cronologia lavori/worksite timetable: 10.2010-04.2011
crediti foto/photo credits: Rocco Fainardi


download PDF (it)
download PDF (en)
download PDF (fr)