via buccari 1
30171 venezia (Italia)
+39 041 419 03 37
info@gi-f.com

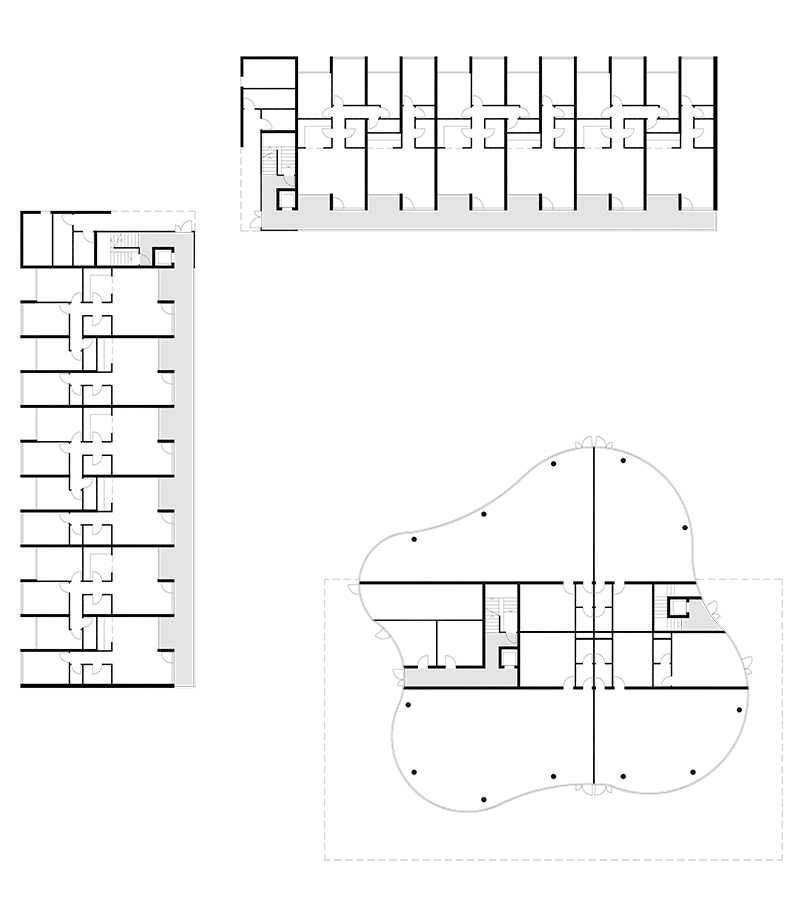
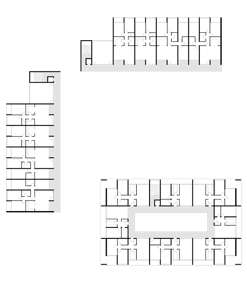
QUARTIERE RESIDENZIALE-COMMERCIALE PRES-GRANGE
PRES-GRANGE HOUSING SETTLEMENT WITH RETAILS


luogo/location: Corsier (Svizzera) mappa/map
cliente/client: Comune di Corsier
consulenti/consultants: SFH Ingénierie (energie rinnovabili)
superficie/gross surface: 5 200m² (residenziale); 640m² (commerciale)
importo opere/cost: 24,0M € IVA escl.
stato/phase: concorso internazionale
cronologia/timetable: 11.2009-03.2010


download PDF (it)
download PDF (en)
download PDF (fr)