via buccari 1
30171 venezia (Italia)
+39 041 419 03 37
info@gi-f.com

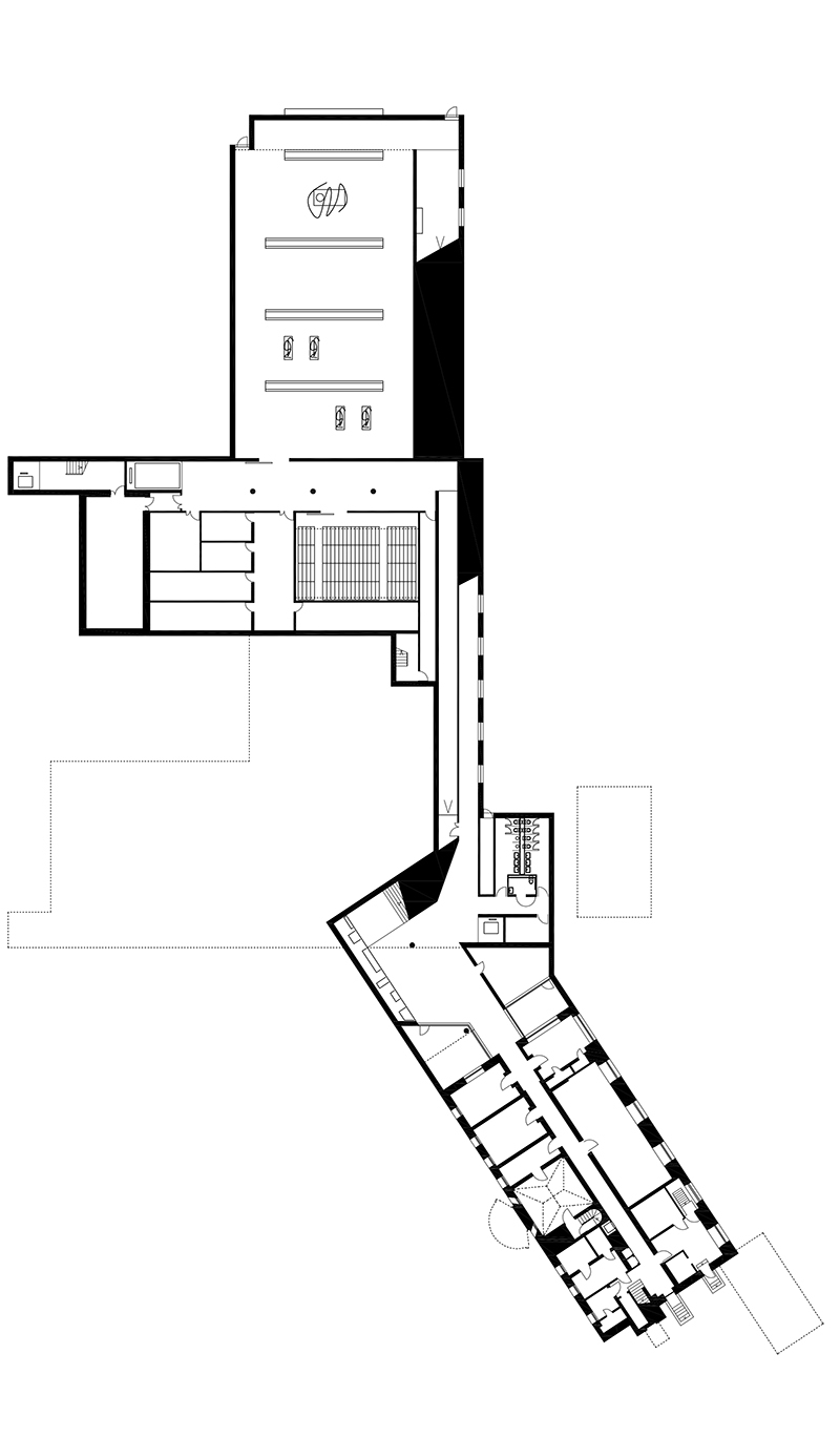
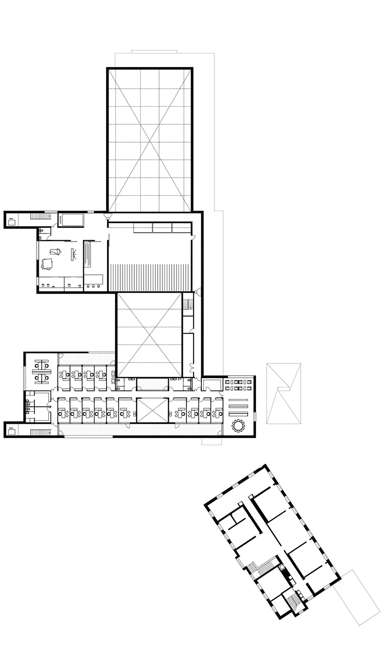
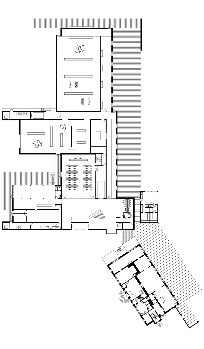
AMPLIAMENTO DEL MUSEO SERLACHIUS GOSTA
SERLACHIUS GOSTA MUSEUM EXTENSION


luogo/location: Mänttä (Finlandia) mappa/map
cliente/client: Fondazione SERLACHIUS GOSTA
superficie/gross surface: 3 000m²
importo opere/cost: 15,0M € IVA escl.
stato/phase: concorso internazionale
cronologia/timetable: 01.2011-04.2011


download PDF (it)
download PDF (en)
download PDF (fr)